
Casa TI
2017
Proyecto Vivienda Unifamiliar
Córdoba, Argentina
.
Casa Ti es una vivienda unifamiliar de 300 m², concebida a partir de un encargo particular: debía responder a las necesidades actuales de una joven soltera, pero proyectarse con la mirada puesta en el futuro de una familia tipo.
La estrategia proyectual se basó en la experiencia personal de la dueña, quien creció en una gran casa de familia marcada por la unión y las reuniones sociales. Ese recuerdo se tradujo en un hogar diseñado para acoger momentos de encuentro, sin perder intimidad ni proyección de crecimiento.
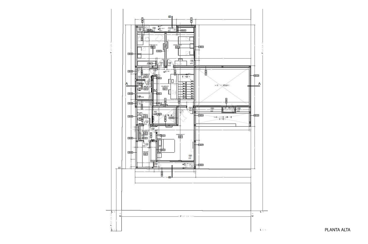
El esquema funcional organiza lo social en planta baja y lo privado en planta alta, vinculados a través de una doble altura central que potencia la integración visual y espacial.
La casa se muestra cerrada hacia la calle, buscando privacidad y resguardo, mientras que hacia el jardín se abre con generosidad, extendiendo la vida interior hacia el exterior.
Los materiales nobles y perdurables —sólidos, cálidos y honestos— refuerzan la esencia del proyecto: un hogar con raíces en la tradición, pero con mirada contemporánea y adaptable al tiempo.

Casa Ti es una vivienda unifamiliar de 300 m², concebida a partir de un encargo particular: debía responder a las necesidades actuales de una joven soltera, pero proyectarse con la mirada puesta en el futuro de una familia tipo.
La estrategia proyectual se basó en la experiencia personal de la dueña, quien creció en una gran casa de familia marcada por la unión y las reuniones sociales. Ese recuerdo se tradujo en un hogar diseñado para acoger momentos de encuentro, sin perder intimidad ni proyección de crecimiento.
El esquema funcional organiza lo social en planta baja y lo privado en planta alta, vinculados a través de una doble altura central que potencia la integración visual y espacial.
La casa se muestra cerrada hacia la calle, buscando privacidad y resguardo, mientras que hacia el jardín se abre con generosidad, extendiendo la vida interior hacia el exterior.
Los materiales nobles y perdurables —sólidos, cálidos y honestos— refuerzan la esencia del proyecto: un hogar con raíces en la tradición, pero con mirada contemporánea y adaptable al tiempo.
Casa TI
2017
Proyecto Vivienda Unifamiliar
Córdoba, Argentina
.















